Resultatet ble et anneks han satte opp på egen hånd, og som i dag brukes som et ekstra oppholdsrom tett knyttet til hagen.

Et anneks Morten kunne bygge selv
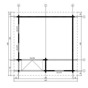
Morten hadde aldri gjort noe lignende før. Likevel opplevde han monteringen som oversiktlig, fordi annekset leveres som et komplett byggesett der alle deler er ferdig kappet og tilpasset.
Byggesettet er laget for:
- trinnvis montering
- god passform mellom delene
- stabil og solid konstruksjon
Når rammeverket først var på plass, opplevde Morten at resten av monteringen gikk raskere enn forventet.

Forarbeid som gir et bedre sluttresultat
Før monteringen startet, ble treverket grunnet og behandlet. Dette bidrar til å beskytte materialene og redusere risikoen for at treverket vrir seg over tid.
Morten valgte også å behandle innsiden av annekset, noe som anbefales for å sikre god stabilitet i konstruksjonen.
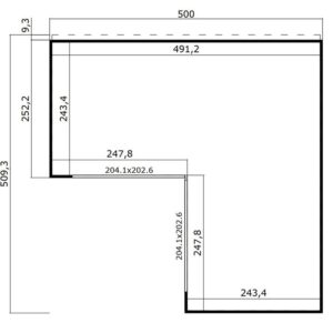
Annekset ble plassert på en eksisterende platting, men løsningen kan like gjerne bygges på et enkelt fundament med rammebjelker og punktfundament.Forarbeid som gir et bedre sluttresultat
Før monteringen startet, ble treverket grunnet og behandlet. Dette bidrar til å beskytte materialene og redusere risikoen for at treverket vrir seg over tid.
Morten valgte også å behandle innsiden av annekset, noe som anbefales for å sikre god stabilitet i konstruksjonen.
Annekset ble plassert på en eksisterende platting, men løsningen kan like gjerne bygges på et enkelt fundament med rammebjelker og punktfundament.
Materialer som føles solide
Underveis i byggingen la Morten merke til kvaliteten på materialene. Treverket er tykt, stabilt og gir et solid uttrykk – noe som merkes både under montering og i ferdig bygg.
Det ferdige annekset oppleves som:
- robust og stødig
- gjennomført i detaljer
- godt tilpasset bruk over tid
Dette har også gjort at naboer har stoppet opp for å ta en nærmere titt.
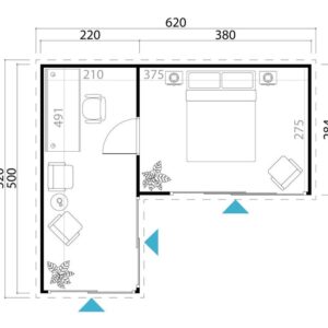
Et rom som brukes hele året
Annekset brukes i dag som et ekstra rom i hagen – et sted for både ro og samvær. Ved å isolere gulv, vegger og tak har Morten gjort det mulig å bruke bygget store deler av året.
Et anneks kan fungere som:
- oppholdsrom
- gjesterom
- hjemmekontor
- hobbyrom
Fleksibiliteten gjør det til et verdifullt tillegg til boligen.
Enklere enn forventet
Det som overrasket Morten mest, var hvor overkommelig hele prosessen var. Med tydelige monteringsanvisninger og ferdig tilpassede deler ble byggeprosjektet langt mindre komplisert enn han hadde sett for seg.
Med gode forberedelser og steg‑for‑steg‑montering er det fullt mulig å bygge et anneks selv – også uten tidligere erfaring.

Kort oppsummert
- Annekset leveres som komplett byggesett
- Ferdig kappede deler gir enkel montering
- Godt forarbeid gir bedre sluttresultat
- Solide materialer gir stabil konstruksjon
- Resultatet er et ekstra rom i hagen, bygget selv
FAQ:
Ja, mange klarer det fordi delene er ferdig tilpasset og monteringen følger en tydelig rekkefølge.
For å redusere risiko for vridning og bidra til bedre stabilitet over tid.
Det kan stå på platting hvis den er i vater og stabil. Hvis det skal stå på gress/jord, bør du lage et riktig fundament.
Forarbeid + å følge bruksanvisningen trinn for trinn.
Se våre modeller her:
-
Anneks Mysen 28,7m²
10 størrelserkr 144 990 -
Anneks Mysen 24m²
10 størrelserkr 112 990 -
Anneks Loen 10,2m²
kr 90 990 -
Anneks Kleppe 12,8m²
kr 109 990 -
Anneks Myra 22,9m²
kr 149 990 -
Anneks Jessheim 16,8m²
kr 59 990 -
Anneks Kopervik 13,5m²
kr 79 990 -
Anneks/Lysthus Trondheim 4,8m²
kr 39 990 -
Anneks/Lysthus Bodø 12m²
kr 59 990 -
Anneks Stavanger 10,6m²
kr 75 990 -
Anneks Drøbak 11,4m²
kr 59 990 -
Anneks Tromøya 1 8,8m²
2 størrelserOpprinnelig pris var: kr 42 990.kr 34 990Nåværende pris er: kr 34 990. -
Anneks Mysen 5 17,4m²
Opprinnelig pris var: kr 129 990.kr 99 990Nåværende pris er: kr 99 990. -
Anneks Birkeland 18m²
kr 124 990 -
Anneks Holmen 2 20,1m²
2 størrelserkr 82 990 -
Anneks Fevik 2 16,5m²
2 varianterkr 179 990 -
Anneks Fevik 1 16,5m²
2 varianterkr 159 990 -
Anneks Hille 3 22,4m²
3 størrelserOpprinnelig pris var: kr 159 990.kr 145 990Nåværende pris er: kr 145 990. -
Anneks Mysen 4 13,5m²
Opprinnelig pris var: kr 99 990.kr 89 990Nåværende pris er: kr 89 990. -
Anneks Hille 2 12,3m²
3 størrelserkr 98 990
Gode råd er ikke dyre, men gratis
Vi har satt opp en liten huskeliste på hva du må tenke på når du skal bygge en bod eller anneks:
- Les HELE bruksanvisningen før du starter med byggingen
- Grunn/mal før du starter – da holder bygget seg lenger.
- Husk å male innsiden av bygget – da unngår du at treverket vrir seg og at bygget blir skjevt.
- Bygg opp trinn for trinn – ikke ta snarveier!
- Dekk til bygget med plast om du ikke blir ferdig med taket før du tar kvelden i tilfelle regn
- Husk takpapp eller shingels.
Bygget liten hagestue på en helg
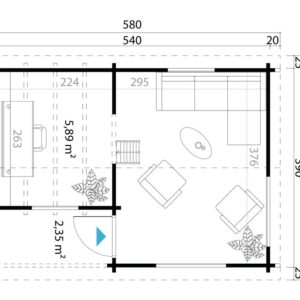
Kristin i Bærum satte opp en liten hagestue i bakhagen i fjor sommer. Denne benyttes ofte av familiens tre barn/ungdom som gjerne samler venner til tv-titting, brettspilling og kos. Det ekstra rommet fungerer dessuten utmerket hvis en av oss foreldre ønsker litt alene-tid og avslapning. Hagestuen har også muliggjort hyggelige småbesøk for oss voksne på kveldstid når barna skal ha ro til soving sier Kristin.
Trematerialene er tykke og solide, slik at bygget er svært solid og framstår som «ordentlig». Elementer av metallbeslag fungerer beskyttende på aktuelle områder, og sammen med store vindusflater gir det annekset et moderne, «rent» uttrykk som tiltrekker oss rent estetisk.
Ved å isolere gulv, tak og vegger, slik vi har valgt å gjøre, har vi fått et ekstra helårsrom hvor vi trives svært godt! Se flere bilder her



















































































