Enkelt med byggesett
Ved å velge et komplett byggesett er store deler av jobben allerede gjort for deg. Byggesettene leveres i elementer med alt av festemidler og detaljert monteringsanvisning, alt som gjenstår er selve monteringen. Det har aldri vært enklere å bygge et helt eget fristed for barna.
Trenger jeg fundament til en lekestue?
Alle bygg må ha et fast, stødig og jevnt underlag, du kan enkelt benytte lecablokker, eller plasser lekehuset på en platting, belegningsstein eller lignende.
Her kan du lese litt om hvordan du bygger et godt fundament
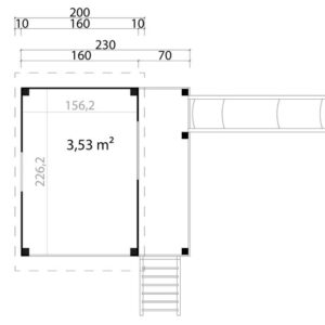
Nora, et av våre lekehus er et litt kraftigere bygg som gjør at du feks kan legge gress på taket for å få litt unik stil. Eller hva med full blomstereng?
Mulighetene er mange!

Hva skal jeg velge?
Et lekehus kan koste alt fra 1000 kr, til 50 000 kr – og da er det viktig at du har tenkt gjennom hva du ønsker å sette opp. Et hus som koster over 20 000 kr er i god kvalitet som varer i mange år. Det vil da skape en egen liten atmosfære i hagen din og kunne glede barn i årevis. Om du tenker at det kun skal stå et par år, kan man vurdere billigere varianter, men ikke regne med samme kvalitet.
Uansett er vedlikehold like viktig her som på et vanlig hus, det trenger grunning og maling jevnlig, samt en vask innimellom.
Når man velger et hus som passer for deg, er det veldig koselig at man setter det opp sammen med barna slik at de også får et eierskap til huset og får enda mer glede ut av det.

Når oppsto lekestuene?
Muligens kom de første lekestuene opp i siste halvdel av 1500 – tallet. Disse var for å lære barn om hjemmets gjøremål og sosiale situasjoner. Etter hvert på 1700- tallet, under opplysningstiden, var det en filosof som hadde nye idéer om barneoppdragelse og pedagogikk gjennom lek og lære. I dag ser du dukkestuer/lekestuer i mange hager, noen mer forseggjort enn andre, men alle til glede for mange generasjoner med barn.
Se vårt utvalg av lekestuer her

Les også saken fra når vi malte og monterte en lekestue på Prestrud gård her
Se våre lekehus her:
-
Lekehus Woody
Opprinnelig pris var: kr 11 990.kr 9 990Nåværende pris er: kr 9 990. -
Lekehus Timon
kr 16 990 -
Lekehus Simba
kr 15 990 -
Lekehus Olaf
Opprinnelig pris var: kr 7 490.kr 6 990Nåværende pris er: kr 6 990. -
Lekehus Nora
kr 22 990 -
Lekehus Magica
kr 24 990 -
Lekehus Figaro | Rød
Opprinnelig pris var: kr 8 990.kr 5 490Nåværende pris er: kr 5 490. -
Lekehus Baloo
Opprinnelig pris var: kr 16 990.kr 11 990Nåværende pris er: kr 11 990.












































