Anneks | Røros 2 | 22m²
| Størrelse: 22m² vindu/dør pakke 2 |
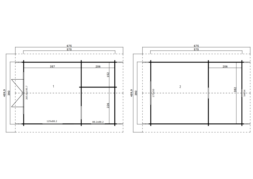
Romslig tre-roms anneks med hems og stige, hvor du fritt kan velge plassering av dører og vinduer. Gir maksimal mulighet for tilpasning etter tomt og behov. Perfekt for både kontor, gjesterom eller hobbyrom.
Leveringstid: Bestillingsvare – 6–12 uker
Norsk nettbutikk – sendes fra Norge til Norge
Faktura og delbetaling med Svea
Gratis frakt på anneks og boder
Romslig tre-roms anneks med hems, stige og valgfri plassering av dører og vinduer.
Annekset består av et større, samt to mindre rom og egner seg som ekstra plass både hjemme og på hytta. Med Røros får du god plass til både hobby, kontor, eller et ekstra oppholdsrom for hele familien. Annekset leveres med doble vinduer og tetninger, dobbel dør med vindu og lås for sikkerhet, impregnert sokkelramme, veggdetaljer, takbjelker, gulv- og takplater, stige og listverk.
Alle våre anneks leveres som komplette byggesett med alt av festemidler og detaljert monteringsanvisning, noe som gjør dem enkle å sette opp uten hjelp fra fagfolk.
Medfølgende sprosser er avtagbare på både dør og vinduer.
Annekset leveres ubehandlet. Vi anbefaler at bygget, umiddelbart etter det er reist overflatebehandles med grunning, i tillegg til beis eller dekkmaling både utvendig og innvendig.
Tak
Underlagspapp følger ikke med, vi anbefaler å legge takshingel eller premium takpapp for å gjøre annekset bærekraftig mot fukt og regn. Ta gjerne kontakt med oss hvis du ønsker mer informasjon.
| Attributter | Verdi |
|---|---|
| Vekt | 1300,0 kg |
| Dimensjoner | 5750,0 × 3900,0 × 3306,0 mm |
| Dybde/Lengde (mm) |
5750 |
| Høyde (mm) |
3306 |
| Materialer |
Gran |
| Farge |
Natur |
| Garanti |
5 år |
| Bredde (mm) |
3900 |
| Antall rom |
4 |
| Materialtykkelse – Vegg (mm) |
40 |
| Vegghøyde (mm) |
2337 |
| Mønehøyde (mm) |
3306 |
| Grunnflate (m²) |
22.4 |
| Grunnflate netto (m²) |
21.66 |
| Fundament mål bXd (mm) |
3890 x 5740 |
| Gulv inkludert |
Ja |
| Materialtykkelse – gulv (mm) |
19 |
| Kan speilvendes? |
Ja |
| Egnet takdekke: |
Takpapp premium x Takshingel |
| Takvinkel i grader |
27.0 |
| Tak Areal (m²) |
37.12 |
| Dørmål 1 (mm) |
835 x 1900 |
| Vinduer |
3 Åpnes |
| Vindu 1 (mm) |
1290 x 882 |
| Vindu 2 (mm) |
882 x 882 |
| GTIN |
4743329232306 |
| Kobling til Facebook |
Ja |
| Kobling til Google |
Ja |
| Materialer |
Gran |
| Behandling |
Ubehandlet |
| 3D Modell Tilgjengelig |
Ja |
| Type Tak |
Saltak |
| Lås inkludert |
Sylinderlås |
| Takdekke |
Ikke inkludert |
| Type Tak |
Saltak |
| Dør |
Enkeltdør |
| Dør 2 |
Dobbeltdør |
| Glass |
2 lags sikkerhetsglass |
| Merke |
Lasita |
| Konstruksjonstype |
Laft |
| Antall rom |
4 Rom |
| Størrelse |
22m² vindu/dør pakke 2 |
| Dør |
Enkeltdør |
Relaterte produkter
-
Anneks | Lillesand 70mm | 19,2m²
4 størrelserkr 114 990 -
Anneks | Ålesund 1 | 9,3m²
kr 52 990 -
Anneks | Ålesund 2 | 14,5m²
kr 66 990 -
Anneks | Birkeland | 18m²
kr 124 990


















