Å tilbringe tid utendørs har aldri vært viktigere, og hva kan være bedre enn å skape et tilfluktssted rett utenfor døren din? Med sommeren rett rundt hjørnet er det på tide å vurdere å sette opp et anneks i hagen. Et anneks kan fungere som en overnattingsplass for svigerfamilien, en hagestue for avslapning eller til og med et hobbyrom for dine kreative prosjekter. Våre byggesett gjør prosessen enkel og rask, slik at du kan nyte fordelene etter et par dager.
Enkelt å sette sammen, enkelt å nyte
Med våre moderne byggesett er det enkelt å sette opp et anneks uten behov for avansert verktøy eller langvarig byggeprosess. Ved å følge enkle instruksjoner kan du ha din egen hageoase klar på kort tid. Dette gjør det til et ideelt prosjekt for både erfarne håndverkere og nybegynnere. Ved å behandle innside og utside setter du ditt eget uttrykk på annekset, enten du ønsker at det skal stå i stil til huset, eller at det skal være et unikt smykke i hagen. Våre modeller kommer i ulike størrelser og design, slik at du kan velge det som passer deg og din hage best.

Gjestfrihet
Med et anneks i hagen trenger du ikke bekymre deg for hvor gjestene dine skal overnatte. Gi dem en komfortabel og privat plass rett utenfor døren din. Våre høykvalitetsmaterialer, som skandinavisk gran, sikrer både komfort og varighet, slik at gjestene dine vil føle seg velkomne og avslappede.
Når man er på besøk er det alltid deilig å kunne trekke seg litt bort, så et eget hus er en god måte å ønske gjestene velkommen på!
Et anneks blir som en forlengelse av hjemmet ditt. Bruk det som en hagestue hvor du kan nyte naturen uten å måtte bekymre deg for været, eller som et hobbyrom hvor du kan dyrke dine lidenskaper og interesser. Uansett hva du velger å bruke det til, vil det skape et ekstra rom for deg og din familie å trives i.

Med et anneks i hagen trenger du ikke lenger bekymre deg for hvor gjestene dine skal overnatte. Gi dem en komfortabel og privat plass rett utenfor døren din. Våre høykvalitetsmaterialer, som skandinavisk gran, sikrer både komfort og varighet, slik at gjestene dine vil føle seg velkomne og avslappede.
Når man er på besøk er det alltid deilig å kunne trekke seg litt bort, så et eget hus er en god måte å ønske gjestene velkommen på!
Et anneks blir som en forlengelse av hjemmet ditt. Bruk det som en hagestue hvor du kan nyte naturen uten å måtte bekymre deg for været, eller som et hobbyrom hvor du kan dyrke dine lidenskaper og interesser. Uansett hva du velger å bruke det til, vil det skape et ekstra rom for deg og din familie å trives i.
Moderne design
Å sette opp et anneks i hagen din denne sommeren gir deg ikke bare ekstra plass, det gir deg også friheten til å skape ditt eget personlige fristed rett utenfor døren din. Med enkle byggesett, allsidige bruksområder og moderne design, er det den perfekte tiden for å investere i et anneks.
-
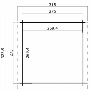
Anneks | Lillesand 70mm | 19,2m²
4 størrelserkr 114 990 -
Anneks | Ålesund 1 | 9,3m²
kr 52 990 -
Anneks | Ålesund 2 | 14,5m²
kr 66 990 -
Anneks | Askøy 1 | 7,5m²
2 størrelserkr 22 990 -
Anneks | Askøy 2 | 10,4m²
2 størrelserkr 24 990 -
Anneks | Birkeland | 18m²
kr 124 990 -
Anneks | Drøbak | 11,4m²
kr 59 990 -
Anneks | Fevik 1 | 16,5m²
2 varianterkr 159 990 -
Anneks | Fevik 2 | 16,5m²
2 varianterkr 179 990


































