For å finne svar på dette, har Dagbladet latt to fagfolk — en møbel- og innredningssnekker og en sivilarkitekt — vurdere et utvalg populære anneks. Resultatene kom nylig i en test hvor ett anneks ble løftet fram som klart best.
Her har vi laget et sammendrag. Vil du lese hele testen fra Dagbladet? Se HER
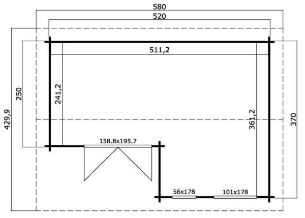
Hvorfor Gardia Lillesand vant
- Pris og areal – Annekset har et innvendig areal på 13,9 m², men til en pris som gir kun ca. 4 315 kr per kvadratmeter – en meget gunstig kvadratmeterpris i klassen.
- Design og romfølelse – Fire store vinduer gir godt lys og følelse av åpenhet. Planløsningen vurderes som fleksibel med gode muligheter for både seng, sittegruppe og lagring. Det er tydelig at produsenten har ønsket en balansert miks av praktisk og estetisk.
- Ekstra uteplass – Selv om uteplassen er beskjedent (ca. 2 m²), gir den likevel en hyggelig «utenfor døra»-følelse — perfekt for en stol, kaffe og utsikt mot naturen.
- Kvalitet for pengene – Dommerne fremhever at hvis materialkvaliteten er bra, får man svært mye anneks for pengene. Et moderne og pent uttrykk, god planløsning og realistiske muligheter for møblering gjør at Lillesand skiller seg ut.
I testen med flere modeller — inkludert modeller som både var billigere og dyrere — var det nettopp Gardia Lillesand som fikk høyest samlet score.

Hva du bør vurdere før du velger
Testen påpeker at det er en del viktige forhold å sjekke — særlig hvis du planlegger å bruke annekset vinterstid:
- Dersom du ønsker å isolere, må du vurdere veggtykkelse og om isolering er lagt til. Mange av annekstypene krever etterisolering, og det kan bli kostbart.
- Bruksmåten betyr mye: Skal det være bod, gjesterom, soveplass, hobbyrom? Bruk bestemmer hvilke kvaliteter som er viktigst (isolasjon, areal, lys, lagring etc.).
- Sjekk kommunale regler: Dersom du innreder soveplass, bad eller kjøkken blir annekset en boenhet — og da kan det være søknadsplikt.
Lillesand passer særlig godt hvis du ønsker:
- Et rimelig anneks med solid areal og god vindusflate.
- Fleksibel planløsning som kan tilpasses både lagring, gjesterom eller soveplass.
- Enkle, men gjennomtenkte løsninger med moderne uttrykk — uten å sprenge budsjettet.
- Et bygg som kan gi ekstra liv til hyttetunet: lys, ekstra plass, mulighet for små uteplasser og god totalverdi for pengene.

For en full gjennomgang av alle testede modeller — med detaljer om pris, areal, isolering, fordeler og ulemper — kan du lese hele saken hos Dagbladet: “Anneks-test: Suveren vinner!”.























