
Bod | Arna | 15m²
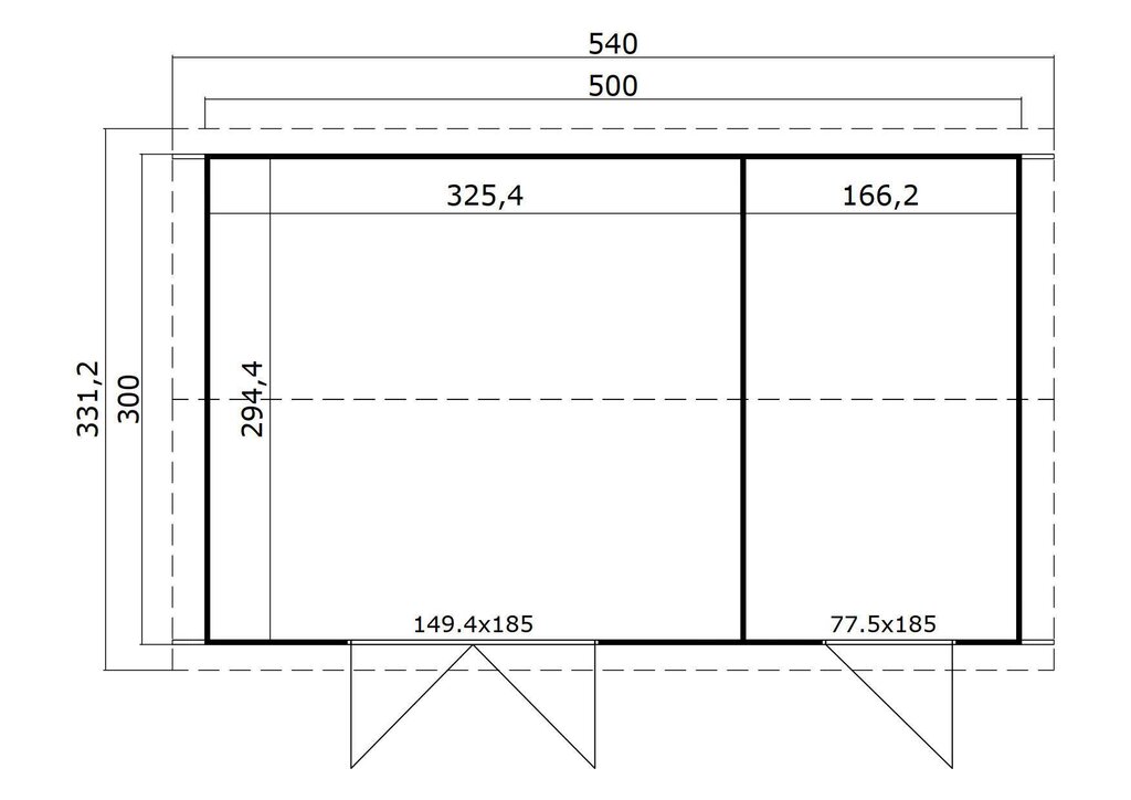
Vår bestselgende redskapsbod kombinerer tidløs design med praktisk funksjonalitet. Den har to romslige oppbevaringsrom for alt fra hageredskaper til sykler, og leveres med en dobbel og en enkel dør i høy kvalitet som gir enkel tilgang og langvarig holdbarhet.
Leveringstid: På lager – 1–8 virkedager
Norsk nettbutikk – sendes fra Norge til Norge
Faktura og delbetaling med Svea
Gratis frakt på anneks og boder
Smidig og praktisk lagring til enhver hage!
En tidløs og praktisk redskapsbod med to romslige oppbevaringsrom. Leveres med en dobbel, samt en enkel dør i høy kvalitet, dette gjør boden funksjonell til lagring av både små og store redskaper/utstyr. Arna dekker alle dine behov!
Redskapsboden leveres som komplett byggesett med alt av festemidler og detaljert monteringsanvisning, noe som gjør den enkel å sette opp uten hjelp fra fagfolk.
Boden leveres ubehandlet. Vi anbefaler at bygget, umiddelbart etter det er reist overflatebehandles med grunning, i tillegg til beis eller dekkmaling både utvendig og innvendig..
Tak
Underlagspapp følger ikke med, vi anbefaler å legge takshingel eller premium takpapp for å gjøre boden bærekraftig mot fukt og regn. Ta gjerne kontakt med oss hvis du ønsker mer informasjon.
Fundament
Grunnlaget er kanskje det viktigste trinnet og bør ikke undervurderes. For å få full glede av produktet, er det svært viktig at det står montert på et fast, stødig og jevnt underlag. Dette kan gjøres på flere måter, men det viktigste er at underlaget er i vater og i vinkel, samt holder seg stabilt over tid.
| Attributter | Verdi |
|---|---|
| Vekt | 979,0 kg |
| Dimensjoner | 3000,0 × 5000,0 × 2510,0 mm |
| Dybde/Lengde (mm) |
3000 |
| Høyde (mm) |
2510 |
| Materialer |
Gran |
| Farge |
Natur |
| Garanti |
5 år |
| Bredde (mm) |
5000 |
| Antall rom |
2 |
| Materialtykkelse – Vegg (mm) |
28 |
| Vegghøyde (mm) |
2109 |
| Mønehøyde (mm) |
2508 |
| Grunnflate (m²) |
15.0 |
| Grunnflate netto (m²) |
14.56 |
| Fundament mål bXd (mm) |
4990 x 2990 |
| Gulv inkludert |
Ja |
| Kan speilvendes? |
Ja |
| Egnet takdekke: |
Takpapp premium x Takshingel |
| Takvinkel i grader |
13.0 |
| Tak Areal (m²) |
18.36 |
| Takutspring front (mm) |
300 |
| Takutspring side (mm) |
156 |
| Takutspring bak (mm) |
200 |
| Maks Takbelastning (kN/m2) |
0.95 |
| Dørmål 1 (mm) |
1494 x 1850 |
| GTIN |
4743329219154 |
| Kobling til Facebook |
Ja |
| Kobling til Google |
Ja |
| Materialer |
Gran |
| Behandling |
Ubehandlet |
| 3D Modell Tilgjengelig |
Ja |
| Type Tak |
Saltak |
| Lås inkludert |
Sylinderlås |
| Takdekke |
Ikke inkludert |
| Type Tak |
Saltak |
| Dør |
Dobbeltdør |
| Merke |
Lasita |
| Konstruksjonstype |
Bærende veggbord m/hjørnestendere |
| Antall rom |
2 Rom |
| Dør |
Dobbeltdør| |
Documents

Relaterte produkter
-
Bod | Harstad | 5m²
kr 33 990 -
Bod | Helgøya 1 | 2m²
Opprinnelig pris var: kr 11 990.kr 7 990Nåværende pris er: kr 7 990. -
Bod | Lunner 2 | 4,8m²
Opprinnelig pris var: kr 21 990.kr 19 990Nåværende pris er: kr 19 990. -
Bod | Lunner 3 | 7,5m²
Opprinnelig pris var: kr 29 990.kr 26 990Nåværende pris er: kr 26 990.

























